Noble House East Elevation
Noble House Killcare Street Elevation
Noble House Kitchen Dining
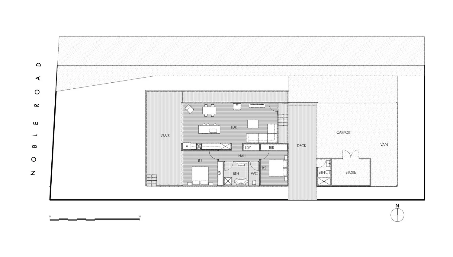
Noble House Floor Plan
Noble House Fireplace
Noble House Covered Outdoor Entertaining
prev / next