• INTRO
  • SELECTED PROJECTS
  • PRESS
  • TESTIMONIALS
  • ABOUT
  • CONTACT
Menu

MATT THITCHENER ARCHITECT

  • INTRO
  • SELECTED PROJECTS
  • PRESS
  • TESTIMONIALS
  • ABOUT
  • CONTACT

KILLCARE HEIGHTS ESCARPMENT HOUSE

The Killcare Heights Escarpment House is a Luxury, 3 bedroom architect designed beach house set on the edge of an escarpment overlooking the Ocean in Killcare Heights NSW.

High set board form concrete ceilings, stone and tile floors are softened by polished plaster, beautiful shou sugi ban linings and delicate veneered joinery to create a luxurious and robust feel.

Views of the Pacific Ocean are captured through Floor to Ceiling – Wall to Wall glass sliding doors and from the elevated Master Bedroom.

The double height entry is bathed in northern sunlight in winter and shaded in summer.

Sliding Glass walls disappear to open the already large Open plan living onto a protected entertaining courtyard.

Clever environmental design incorporating Passive Solar, thermal mass, stack and cross ventilation will ensure that this beach house is comfortable year round.

category

killcare heights, luxury, off form concrete, shou sugi ban, monumental, minimalist, open plan, modern

engineer

Thitchener Consulting

http://www.thitchener.com.au

builder

Arte Constructions

http://arteconstructions.com.au

Killcare Heights Escarpment House Street Elevation
Killcare Heights Escarpment House Street Elevation

Killcare Heights Escarpment House view of the Northeastern pavilion and Entry Undercroft from the street showing clerestory windows illuminating the Entry Hall.

Board Formed Concrete Ceilings Killcare Heights Escarpment House
Board Formed Concrete Ceilings Killcare Heights Escarpment House

beautiful board formed concrete ceilings, recessed downlights, door tracks and shutters…

Master Suite Views
Master Suite Views

High level ocean views over the rooftop garden

Kitchen Killcare Heights
Kitchen Killcare Heights

Black timber veneer Kitchen with views to the Ocean

Stair Killcare Heights
Stair Killcare Heights

Moody Entry Hallway with Black plate steel stair taken from internal courtyard

Killcare Heights Escarpment House Construction Drone Image
Killcare Heights Escarpment House Construction Drone Image

Drone photo over escarpment during construction

Killcare Heights Escarpment House Entry Stair
Killcare Heights Escarpment House Entry Stair

The Black plate steel and timber entry stair is a striking sculptural element suspended within the entry space.

The cranked black steel stringer also plays the part of balustrade, with the semi gloss finish reflecting the ocean and clouds beyond.

The carefully crafted timber treads are finished with a black stain to allow them to be easily seen through to the ocean view beyond.

Pool & Bar at edge of escarpment
Pool & Bar at edge of escarpment

swim up to the infinity edge of the pool or relax at the bar overlooking the national park and the ocean

Killcare Heights Escarpment House Bathroom Detail
Killcare Heights Escarpment House Bathroom Detail

Meticulously set out, perfectly lit, beautifully simple textural bathroom with concealed exhaust, tile insert drainage grates, concealed cistern with wall hung pan, glass shower screen with concealed fixtures, heated towel rails, backlit shower niche…

Elegant and luxurious

Escarpment House Kitchen Dining Living
Escarpment House Kitchen Dining Living

This space was designed to embody seamless indoor-outdoor living while embracing a minimalist modern aesthetic. The open-plan layout brings together the kitchen, dining, and living areas, all unified by large-format gray floor tiles and a striking, off-form concrete board formed textured ceiling that adds warmth and depth to the space.

Floor-to-ceiling glass doors blur the boundaries between indoors and outdoors, allowing natural light to flood the interior and creating a strong connection to the surrounding greenery and ocean views. This design not only maximizes the sense of space but also fosters a harmonious relationship with nature—a key aspect of my architectural philosophy.

Every detail in this home was carefully considered, from the sleek cabinetry and understated finishes to the soft furnishings that add subtle warmth. The muted material palette, combined with intentional lighting, enhances the sense of tranquility and sophistication.

This project reflects my commitment to crafting timeless, functional spaces where simplicity meets elegance, and where every element serves to enhance both the aesthetic and the living experience.

Killcare Heights Escarpment House Horizon View.jpg

NOBLE HOUSE KILLCARE

Noble House East Elevation
Noble House East Elevation

The outdoor uncovered deck entertaining area between the Large Carport and House provides increased space for large gatherings.

Noble House Killcare Street Elevation
Noble House Killcare Street Elevation

The Street Elevation of the Noble House Killcare is comprised of a large covered outdoor entertaining area behind a high zincalume balustrade that provides views to the street and mangroves beyond whilst providing privacy and shelter

Noble House Kitchen Dining
Noble House Kitchen Dining

The Noble House kitchen / dining room opening onto the large covered deck.

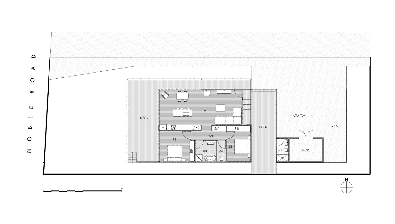
Noble House Floor Plan
Noble House Floor Plan
Noble House Fireplace
Noble House Fireplace

A small but beautiful freestanding fireplace in the Living/Dining/Kitchen space is more than adequate to heat the home in winter

Noble House Covered Outdoor Entertaining
Noble House Covered Outdoor Entertaining

NORTH AVOCA STUDIO

As featured on Australia By Design

The North Avoca Studio is located in the highest point of a steep site, tucked under a low retaining wall and obscured by hedging. Its placement on site didn’t exactly line up with planning rules – its a great example of a project that required an alternate solution for a better project outcome on the site.

Its a space for meditation, for work, for entertaining and relaxation.

It is tucked into just the right place to allow both a level of obscurity from above and an incredible view of the Pacific.

Difficult geotechnical conditions required substantial footings – clever design ensures a minimum of these footings and a reduction in cost by splitting the load into 2 x paths down a cluster of piloti to the ground.

Floor to Ceiling, Wall to Wall Sliding Glass doors paired with a simple interior fit out ensures that the view is the hero.

Elegant detailing and superior craftsmanship ensure that the view looking up as you approach the studio is as good as the view from the top.

Jurors Comments – Colorbond Award for Steel Architecture

“The North Avoca Studio utilises steel throughout in a range of components including the structural steel framing, steel piloti, external staircase, awnings and cladding.
The use of steel fulfils both a structural and aesthetic function and is highly successful in both of these regards. Through the use of the Spandek cladding on both the walls and soffit, the cantilevered form appears as a monolithic form, rather than components, exemplifying the surreal quality of the hovering cube.”

Jurors Comments – Commendation for Small Project Architecture

“Positioned behind an existing split-level home, the North Avoca Studio is almost invisible when viewed from the street, receding from visual prominence.
Outside the back door of the existing home, the cantilevered structure set upon a double cluster of steel piloti is a moment to behold. The cubic form appears to hover above the steep site and allows the landscape to seamlessly continue underneath, capturing views from under and within the space.
A simple open plan space accommodates functions for use both as an office space and a space for meditation. The room is wrapped on three sides by a white curtain, set in a concealed bulkhead detail, which when closed makes the space feel like a floating cloud.
This studio project is ambitious both in its response to the site and the technical detail required to achieve its vision within tight site constraints.”

Australia By Design Season 5 Trailer

Australia By Design Season 5: North Avoca Studio

North Avoca Studio Hero Shot
North Avoca Studio Hero Shot

North Avoca Studio front elevation reaching to the ocean

North Avoca Studio Side Elevation
North Avoca Studio Side Elevation

Extra wide bifolding glass windows protected by a colorbond hood provide extensive views and allow beautiful cross ventilation to the studio space

North Avoca Studio Side Elevation Cantilever
North Avoca Studio Side Elevation Cantilever
North Avoca Studio Entry
North Avoca Studio Entry

Covered Entry to the Studio at the top of the Galvanised Steel Garden Stair

North Avoca Studio Panoramic Views
North Avoca Studio Panoramic Views

Panoramic Views though the long Bifold Window and Wall to Wall Floor to Ceiling Glass Doors

North Avoca Studio Living Space.jpg
North Avoca Studio Cantilever
North Avoca Studio Cantilever

The deep cantilever of the Studio makes it look as if it is reaching toward the ocean

Galvanised Piloti - Space Frame
Galvanised Piloti - Space Frame

The structure supporting the North Avoca Studio is a Galvanised Steel Space Frame supported on 4 x Reinforced Concrete Piers excavated approximately six metres below natural ground level into rock.

The exposed Piloti are the lowest cross members of the space frame, the remainder of the space frame is hidden within the structural framing and clad.

North Avoca Studio Illuminated
North Avoca Studio Illuminated

The soft folded sheer curtains illuminated from above create a cloud like sensation inside and privacy from the outside

North Avoca Studio from Street Level
North Avoca Studio from Street Level
North Avoca Studio Steel Framing Timelapse

Epic one day steel framing install Timelapse

MACMASTERS BEACH COURTYARD HOUSE

The Macmasters Beach Courtyard House is a large house located on a rural site surrounded by established trees and distant mountain and sea views.

The clients wanted a house for their large family arranged around a centralised living area but with three distinct zones – parents wing, kids wing & guest wing.

The two storey entry leads into a generous living/dining/kitchen area looking out onto the pool and central courtyard.

The Macmasters Beach Courtyard House is clad in black express joint FC cladding, with high set ceilings and polished concrete floors throughout.

Windows are deep set to frame views and receive protection from deep eaves.

Texture is introduced into the space by way of the sand stock brick feature wall in the Living room and by the Off-form Concrete Blade and black cantilevered steel stair in the Entry.

Photo Credit: Luke Butterly

Matt Thitchener Architect Courtyard House North Elevation with Pool.jpg
Macmasters Beach Courtyard House Colonnade.jpg
Macmasters Beach Courtyard House Double Height Entry.jpg
Macmasters Beach Courtyard House Approach.jpg
46.jpg
Matt Thitchener Architect Courtyard House Floor Plans.jpg
10.jpg
Courtyard House Recycled Brick Feature Wall.jpg

FORRESTERS BEACH CONCRETE HOUSE

The Forresters Beach Concrete House is a high end, 4 bedroom architect designed beach house overlooking the Pacific Ocean in NSW.

High raking ceilings throughout reach to north facing skylights that allow sunlight deep into the living areas of the house.

Views of the Pacific Ocean are captured through Floor to Ceiling – Wall to Wall glass sliding doors and from the private Whale watching deck over the Master Bedroom.

The triple height entry is bathed in northern sunlight in winter and shaded in summer.

Off form concrete walls ensure that the house is Warm in Winter and beautifully Cool in Summer – Noticeable as soon as you enter the foyer.

Water is harvested off all roofs and collected in rainwater storage tanks providing over 50,000L to water the extensive gardens and to flush toilets.

Clever environmental design incorporating Passive Solar, thermal mass, stack and cross ventilation has ensured this beach house is comfortable year round.

Photo Credit: Luke Butterly

Forresters Beach Concrete House
Forresters Beach Concrete House
Forresters Beach Concrete House
Forresters Beach Concrete House
Forresters Beach Concrete House
Forresters Beach Concrete House
Forresters Beach Concrete House Entry Stairwell
Forresters Beach Concrete House Entry Stairwell
Living Space High Ceilings
Living Space High Ceilings
Forresters Beach Concrete House Garden
Forresters Beach Concrete House Garden
Forresters Beach Concrete House Pillars.jpeg
Forresters Beach Concrete House Living Room Box Overlooking the Ocean
Forresters Beach Concrete House Living Room Box Overlooking the Ocean
Forresters Beach Concrete House Dusk
Forresters Beach Concrete House Dusk
Forresters Beach Concrete House Nighttime
Forresters Beach Concrete House Nighttime
prev / next
Back to MATT THITCHENER ARCHITECT PROJECTS
Matt Thitchener Architect Newport Street Elevation.jpg
0
NEWPORT
Killcare Heights Escarpment House Northeast elevation.jpg
12
KILLCARE HEIGHTS ESCARPMENT HOUSE
Beachview house Entry.jpg
0
BEACHVIEW HOUSE
10/30 house north elevation with eucalypt backdrop.jpg
0
10/30 House PEARL BEACH
Noble House indoor outdoor space.jpeg
6
NOBLE HOUSE KILLCARE
Six String Taproom Sketch rendering.jpg
0
SIX STRING TAPROOM
Matt Thitchener Architect North Avoca Studio Aerial photo.jpg
11
NORTH AVOCA STUDIO
47.jpg
8
MACMASTERS BEACH COURTYARD HOUSE
63FBR-STREET.jpg
10
FORRESTERS BEACH CONCRETE HOUSE

2024 Matt Thitchener Architect